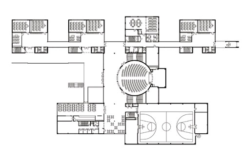
Rocca al Mare koolimaja Projekt : 1999 (Arhitektuuribüroo Urbel ja Peil) Valmis : 2000 Arhitektid : Emil Urbel, Indrek Erm, Ülo Peil Sisearhitekt : Taso Mähar