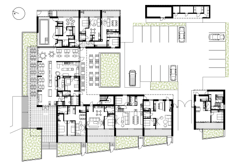
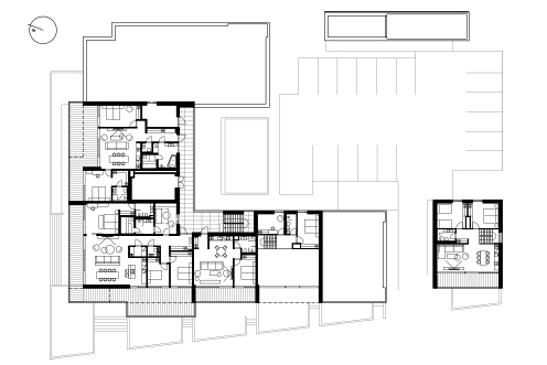
Reute restoran ja residentsid Võsul Projekt : 2021-2024 Valmis : 2024 Arhitektid : Emil Urbel, Indrek Erm, Kristjan Naaris Sisearhitektid : Taso Mähar, Karin Sukk Maastikuarhitekt : Liina Rehepapp