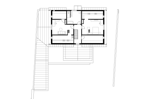
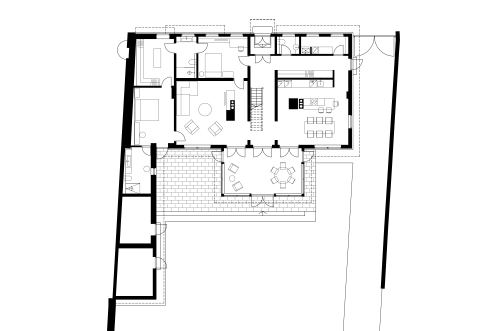
Elamu ümberehitus Kassisabas Projekt : 1883-1884 (Christoph August Gabler) Ümberehitusprojekt : 2023-2025 Valmis : 2025 Arhitektid : Emil Urbel, Ainar Luik Sisearhitektid : Taso Mähar, Karin Sukk