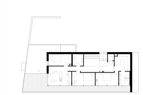
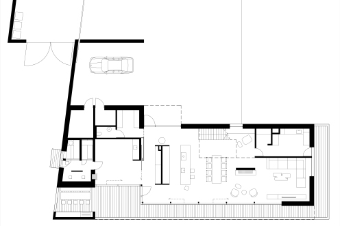
Eramu Rohuneemes Projekt : 2022-2025 Valmis : 2025 Arhitektid : Emil Urbel, Teresa Malmre, Carl-David Randviir Sisearhitektid : Taso Mähar, Karin Sukk